
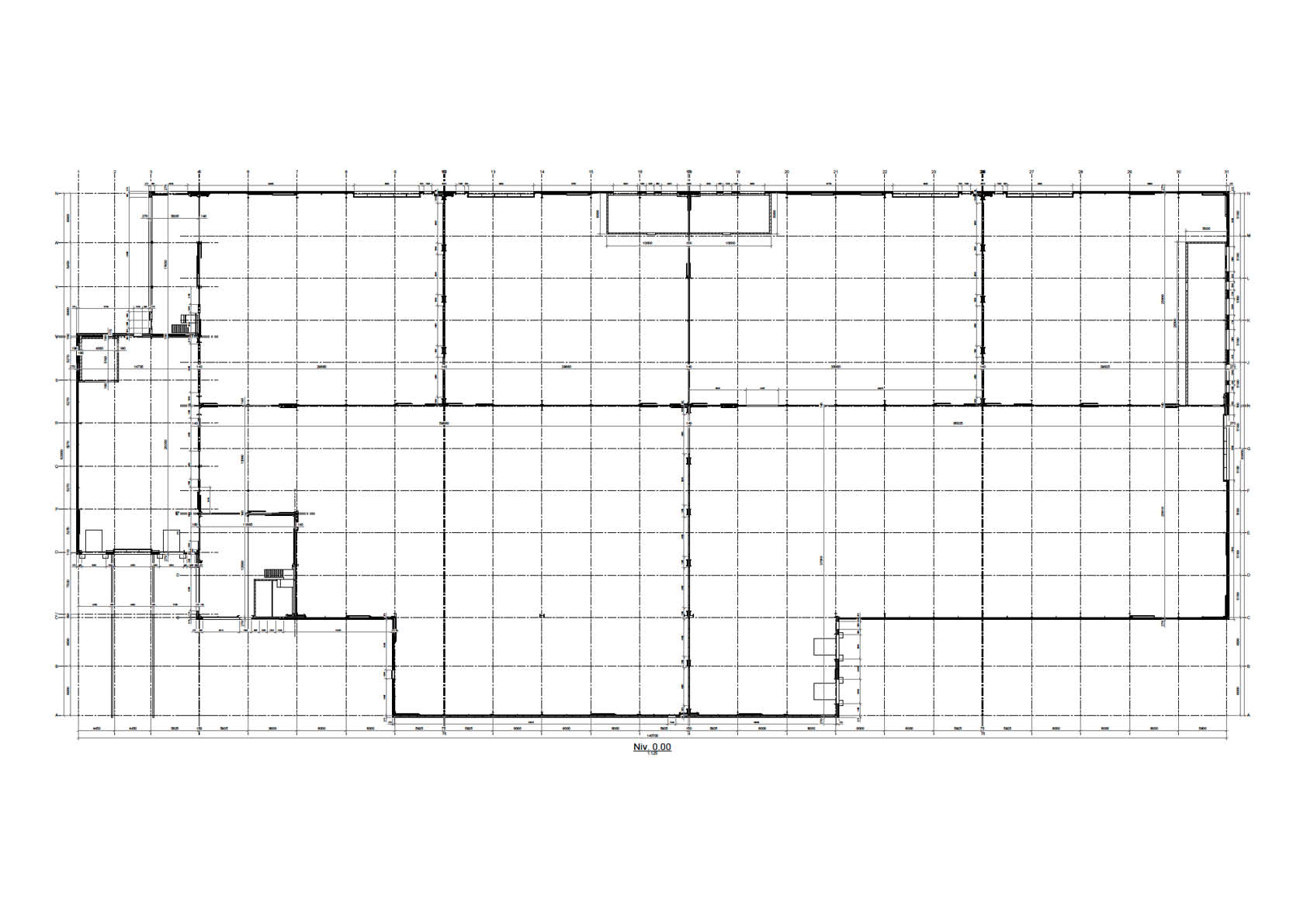
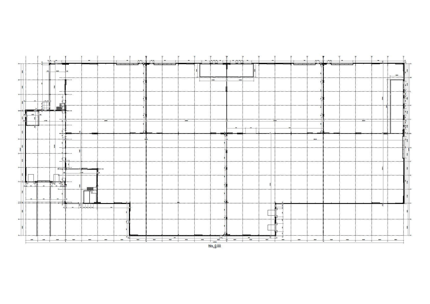
A Aarschot, sur le terrain voisin au site existant de JS Logistics, qui fait partie de la société de transport Smets, un nouveau hall logistique avec bureaux attenants a été construit. D’abord et avant tout, le nouveau bâtiment devait être multifonctionnel, afin que certaines parties puissent être louées séparément à différents partenaires.
C’est pourquoi il a été divisé en cinq entités distinctes, dont deux parties avec leurs propres bureaux et trois avec des espaces sociaux restreints. Chaque partie du hall est dotée de structures en treillis afin de minimiser le nombre d’éléments structurels au milieu de l’espace. Une hauteur libre de 10 mètres sous les charpentes a été imposée en fonction du rayonnage. Le bâtiment est habillé d’environ 5 000 m² de panneaux sandwich en acier, qui garantissent une résistance au feu EI60 conformément à la réglementation en matière d’incendie, et d’environ 7900 m² de tôles de toiture. Au total, le nouveau bâtiment de JS Logistics contient 380 tonnes d’acier.